1. 泵经长途运输到达生产场地,安装前应开箱检验,泵机零部件是否完好无损,紧固件如有松动,应重新紧固,检查泵轴与电机轴的同心度,如有松动应予校正。
2. 泵体全部为 PVDF、FRPP 树脂注塑成形,输出管路上应有支撑架或吊架,不能全靠法兰承受压力,以防变形损坏;进口管路要尽量减少管路水损失,90°弯头不应超过两个。FP、FV 型离心泵应在吸入管前端装上底阀,以保证泵在启动前泵体内充满液体;吸入管口或底阀进口应装滤网,或在进口处装一个过滤器,以防止杂物吸入泵体,保证泵能正常运转。
3. 泵体连接点螺栓要均匀拧紧,进出管口连接严密,不能漏气,否则会影响抽真空,吸不出液体,或在造成流量、扬程不足等弊端。
| 材料 |
介质温度℃ |
材料 |
介质温度℃ |
| 氯化聚氯乙烯(PVC-C) |
-20℃~+95℃ |
聚氯乙烯(PVC-U) |
-5℃~+45℃ |
| 增强聚丙烯(FRPP) |
-20℃~+120℃ |
均聚聚丙烯(PPH) |
-20℃~+110℃ |
| 聚偏二氟乙烯(PVDF) |
40℃~+150℃ |
|
|

直联式自吸泵装配明细图
| 件号 |
名称 |
材质 |
| 1 |
进口法兰 |
FRPP,PVDF |
| 2 |
密封圈 |
EPDM,FPM |
| 3 |
密封圈 |
EPDM,FPM |
| 4 |
出口法兰 |
FRPP,PVDF |
| 5 |
注液盖 |
FRPP,PVDF |
| 6 |
密封胶片 |
EPDM,FPM |
| 7 |
密封圈 |
EPDM,FPM |
| 8 |
冷却盖 |
FRPP,PVDF |
| 9 |
冷却水嘴 |
钢 |
| 10 |
油孔塞 |
FRPP |
| 11 |
连接轴 |
钢 |
| 12 |
连轴器 |
铸铁 |
| 13 |
铭牌 |
铝 |
| 14 |
支架 |
FRPP/铸铁PVDF/铸铁 |
| 15 |
双头螺柱 |
钢、不锈钢 |
| 16 |
机械密封动环 |
碳化硅 |
| 17 |
机械密封静环 |
碳化硅 |
| 18 |
后泵盖 |
FRPP,PVDF |
| 19 |
密封圈 |
EPDM,FPM |
| 20 |
叶轮 |
FRPP/钢 PVDF钢 |
| 21 |
自吸泵泵体 |
FRPP,PVDF |
| 22 |
拍门 |
EPDM,FPM |
| 23 |
前泵盖 |
FRPP,PVDF |

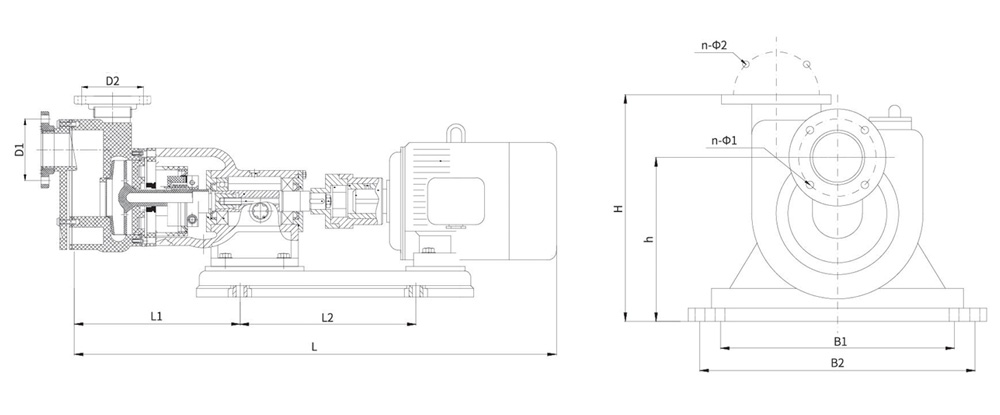
安装尺寸 单位 :mm
|
型号/尺寸
|
安装尺寸
|
进口法兰
|
出口法兰
|
|
L
|
LI
|
L2
|
H
|
h
|
B1
|
B2
|
D1(Φ)
|
n-Φ1
|
D2
|
n-Φ2
|
|
40F
|
p |
(Z)-25 |
800
|
280
|
400
|
360
|
260
|
240
|
335
|
110
|
4-Φ18
|
100
|
4-Φ18
|
| v |
|
50F
|
p |
(Z)-28 |
900
|
280
|
400
|
360
|
260
|
240
|
335
|
125
|
4-Φ18
|
110
|
4-Φ18
|
| v |
|
80F
|
p |
(Z)-30 |
1000
|
575 |
435
|
400
|
300
|
250
|
340
|
160
|
8-Φ18
|
145
|
4-Φ18
|
| v |
|
80F
|
p |
(Z)-32 |
1000
|
575
|
435
|
400
|
300
|
250
|
250340
|
160
|
8-Φ18
|
145
|
4-Φ18
|
| v |