| 材料 |
介质温度℃ |
材料 |
介质温度℃ |
| 氯化聚氯乙烯(PVC-C) |
-20℃~+95℃ |
聚氯乙烯(PVC-U) |
-5℃~+45℃ |
| 增强聚丙烯(FRPP) |
-20℃~+120℃ |
均聚聚丙烯(PPH) |
-20℃~+110℃ |
| 聚偏二氟乙烯(PVDF) |
40℃~+150℃ |
|
|
1.耐热性佳并有高介电强度
PVDF分子结构规整性较大,分子中氟原子和氯原子大小相似,高分子链的排列紧密,并存在着较强的氢键效应,因此聚合物的拉伸强度,压缩强度及冲击韧性等都比较大。此外PVDF的熔点在170℃左右,加工性能良好,方便成型;
2.耐磨,高机械强度及韧度
在氟塑料中具有韧性,低摩擦系数、耐老化性有很强的耐磨性和抗冲击性能,而且在严酷与恶劣的环境中有很高的抗褪色性与抗紫外线性能;
3.耐候,抗紫外线及核射线
高纯净度,有良好的化学稳定性,耐腐蚀性、耐高温性、高阻隔性、耐氧化性、耐候性、耐射线辐射性能外,还具有压电性、介电性、热电性等特殊性能;
4.应用范围广泛
PVDF管道系统广泛应用于石油化工、电子电气、氟碳涂料、核工电力项目、半导体工业上和石化工业上的高纯化学品的贮存和输送。

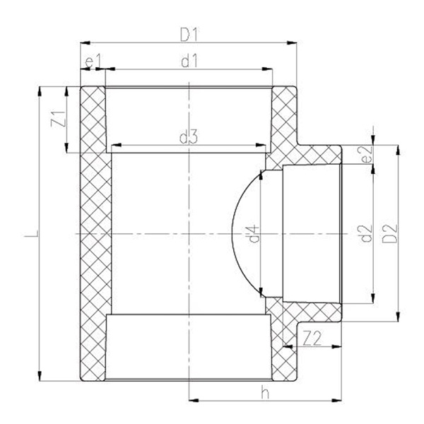
| 公称直径DN |
D1 |
D2 |
d1 |
d2 |
d3 |
d4 |
L |
h |
Z1 |
Z2 |
e1 |
e2 |
| 20*15 |
35 |
29 |
25 |
20 |
20 |
16 |
60 |
29 |
18 |
15 |
5 |
4.5 |
| 25*15 |
43 |
29 |
32 |
20 |
26 |
16 |
64 |
32 |
20 |
15 |
5.5 |
4.5 |
| 25*20 |
43 |
35 |
32 |
25 |
26 |
20 |
68 |
35 |
20 |
18 |
5.5 |
5 |
| 32*15 |
51 |
29 |
40 |
20 |
34 |
16 |
70 |
37 |
22 |
15 |
5.5 |
4.5 |
| 32*20 |
51 |
35 |
40 |
25 |
34 |
20 |
74 |
40 |
22 |
18 |
5.5 |
5 |
| 32*25 |
51 |
43 |
40 |
32 |
34 |
26 |
80 |
42 |
22 |
20 |
5.5 |
5.5 |
| 40*15 |
64 |
29 |
50 |
20 |
44 |
16 |
76 |
43 |
24 |
15 |
7 |
4.5 |
| 40*20 |
64 |
35 |
50 |
25 |
44 |
20 |
80 |
46 |
24 |
18 |
7 |
5 |
| 40*25 |
64 |
43 |
50 |
32 |
44 |
26 |
86 |
48 |
24 |
20 |
7 |
5.5 |
| 40*32 |
64 |
51 |
50 |
40 |
44 |
34 |
94 |
50 |
24 |
22 |
7 |
5.5 |
| 50*25 |
81 |
43 |
63 |
32 |
57 |
26 |
94 |
54.5 |
28 |
20 |
9 |
5.5 |
| 50*32 |
81 |
51 |
63 |
40 |
57 |
34 |
102 |
56.5 |
28 |
22 |
9 |
5.5 |
| 50*40 |
81 |
64 |
63 |
50 |
57 |
44 |
112 |
58.5 |
28 |
24 |
9 |
7 |
| 65*25 |
93 |
43 |
75 |
32 |
67 |
26 |
103 |
61 |
31 |
20 |
9 |
5.5 |
| 65*32 |
93 |
51 |
75 |
40 |
67 |
34 |
111 |
63 |
31 |
22 |
9 |
5.5 |
| 65*40 |
93 |
64 |
75 |
50 |
67 |
44 |
121 |
65 |
31 |
24 |
9 |
7 |
| 65*50 |
93 |
81 |
75 |
63 |
67 |
57 |
134 |
69 |
31 |
28 |
9 |
9 |
| 80*40 |
114 |
64 |
90 |
50 |
81 |
44 |
132 |
73.5 |
35 |
24 |
12 |
7 |
| 80*50 |
114 |
81 |
90 |
63 |
81 |
57 |
145 |
77.5 |
35 |
28 |
12 |
9 |
| 80*65 |
114 |
93 |
90 |
75 |
81 |
67 |
155 |
80.5 |
35 |
31 |
12 |
9 |
| 100*25 |
134 |
43 |
110 |
32 |
100 |
27 |
131 |
80 |
42 |
20 |
12 |
5.5 |
| 100*32 |
134 |
51 |
110 |
40 |
100 |
34 |
138 |
82 |
42 |
22 |
12 |
5.5 |
| 100*40 |
134 |
64 |
110 |
50 |
100 |
44 |
146 |
84 |
41 |
24 |
12 |
7 |
| 100*50 |
134 |
81 |
110 |
63 |
100 |
57 |
159 |
88 |
41 |
28 |
12 |
9 |
| 100*65 |
134 |
93 |
110 |
75 |
100 |
67 |
169 |
91 |
41 |
31 |
12 |
9 |
| 100*80 |
134 |
114 |
110 |
90 |
100 |
81 |
183 |
95 |
41 |
35 |
12 |
12 |