| 材料 |
介质温度℃ |
材料 |
介质温度℃ |
| 氯化聚氯乙烯(PVC-C) |
-20℃~+95℃ |
聚氯乙烯(PVC-U) |
-5℃~+45℃ |
| 增强聚丙烯(FRPP) |
-20℃~+120℃ |
均聚聚丙烯(PPH) |
-20℃~+110℃ |
| 聚偏二氟乙烯(PVDF) |
40℃~+150℃ |
|
|
1.轻便:PVC-U 材料的比重只有铸铁的 1/10,运输,安装简易,降低成本;
2.抗化学性优越:PVC-U 具有优良的抗酸碱性能,除接近饱和点强酸碱外;
3.耐用:抗候性优良,也不能被细菌及菌类所腐化;
4.不导电:PVC-U 材料不能导电,也不受电解,电流的腐蚀,应此无需二次加工。不能燃烧,也不助燃,没有消防顾虑;
5.阻力小,流率高:内壁光滑,流体流动性损耗小,加以污垢不易附着在平滑管壁,保养较为简易,保养费用较低;
6.安装简易,成本低廉:切割及联接都很简易,使用 PVC 胶水联接实践证明安全可靠,操作简便,成本低廉。

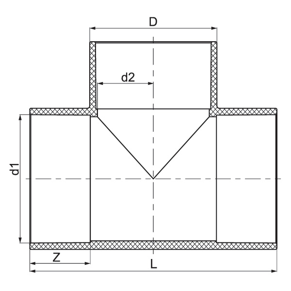
| 规格 |
D (mm) |
d1 (mm) |
d2 (mm) |
L (mm) |
Z (mm) |
| 1/2" (15) |
30 |
21.34 |
18 |
72 |
22.5 |
| 3/4" (20) |
36 |
26.67 |
23 |
83 |
25.5 |
| 1" (25) |
44 |
33.4 |
29 |
98 |
29 |
| 1¼" (32) |
53 |
42.16 |
38 |
113 |
32 |
| 1½" (40) |
60 |
48.26 |
44 |
126 |
35 |
| 2" (50) |
73 |
60.32 |
55 |
145 |
38.5 |
| 2½"(65) |
89 |
73.02 |
68 |
173 |
45 |
| 3" (80) |
106 |
88.9 |
83 |
196 |
48 |
| 4" (100) |
134 |
114.3 |
109 |
242 |
57.5 |
| 5" (125) |
162 |
141.3 |
134 |
289 |
67 |
| 6" (150) |
192 |
168.28 |
160 |
337 |
76.5 |
| 8" (200) |
247 |
219.08 |
210 |
441 |
102 |