| 材料 |
介质温度℃ |
材料 |
介质温度℃ |
| 氯化聚氯乙烯(PVC-C) |
-20℃~+95℃ |
聚氯乙烯(PVC-U) |
-5℃~+45℃ |
| 增强聚丙烯(FRPP) |
-20℃~+120℃ |
均聚聚丙烯(PPH) |
-20℃~+110℃ |
| 聚偏二氟乙烯(PVDF) |
40℃~+150℃ |
|
|
1.耐热性佳并有高介电强度
PVDF分子结构规整性较大,分子中氟原子和氯原子大小相似,高分子链的排列紧密,并存在着较强的氢键效应,因此聚合物的拉伸强度,压缩强度及冲击韧性等都比较大。此外PVDF的熔点在170℃左右,加工性能良好,方便成型;
2.耐磨,高机械强度及韧度
在氟塑料中具有韧性,低摩擦系数、耐老化性有很强的耐磨性和抗冲击性能,而且在严酷与恶劣的环境中有很高的抗褪色性与抗紫外线性能;
3.耐候,抗紫外线及核射线
高纯净度,有良好的化学稳定性,耐腐蚀性、耐高温性、高阻隔性、耐氧化性、耐候性、耐射线辐射性能外,还具有压电性、介电性、热电性等特殊性能;
4.应用范围广泛
PVDF管道系统广泛应用于石油化工、电子电气、氟碳涂料、核工电力项目、半导体工业上和石化工业上的高纯化学品的贮存和输送。

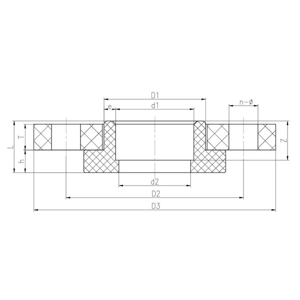
| 公称直径DN |
D1 |
D2 |
D3 |
d1 |
d2 |
L |
T |
h |
Z |
e |
n-Φ |
| 15 |
27 |
65 |
95 |
20 |
14.5 |
27 |
14 |
12 |
16 |
3.5 |
4-Φ14 |
| 20 |
33 |
75 |
105 |
25 |
19.5 |
29 |
16 |
14 |
19.5 |
4 |
4-Φ14 |
| 25 |
41 |
85 |
115 |
32 |
26.5 |
32 |
16 |
14 |
20.5 |
4.5 |
4-Φ14 |
| 32 |
50 |
100 |
140 |
40 |
34.5 |
32 |
18 |
14 |
23 |
5 |
4-Φ19 |
| 40 |
61 |
110 |
150 |
50 |
44.5 |
32 |
18 |
14 |
24.5 |
5.5 |
4-Φ19 |
| 50 |
76 |
125 |
165 |
63 |
57.5 |
36 |
20 |
16 |
28 |
6.5 |
4-Φ19 |
| 65 |
90 |
145 |
185 |
75 |
69.5 |
36 |
20 |
16 |
30 |
7.5 |
4-Φ19 |
| 80 |
109 |
160 |
200 |
90 |
82.5 |
41.5 |
20 |
16 |
35.5 |
9.5 |
8-Φ19 |
| 100 |
131 |
180 |
229 |
110 |
102.5 |
48.5 |
22 |
18 |
42 |
10.5 |
8-Φ19 |