| 材料 |
介质温度℃ |
材料 |
介质温度℃ |
| 氯化聚氯乙烯(PVC-C) |
-20℃~+95℃ |
聚氯乙烯(PVC-U) |
-5℃~+45℃ |
| 增强聚丙烯(FRPP) |
-20℃~+120℃ |
均聚聚丙烯(PPH) |
-20℃~+110℃ |
| 聚偏二氟乙烯(PVDF) |
40℃~+150℃ |
|
|
1.抗化学性优越:使用温度范围广﹣20℃—95℃,介质中重离子含量达超纯水标准;卫生性能符合国家卫生标准要求;
2.具有优良的强度、韧性以及耐化学腐蚀性能;
3.耐用:优异的耐老化和抗紫外线性能,使正常使用寿命比其他管道系统均有很大的延长;
4.低热传导性能:约为钢材的1/200;阻燃性能为自熄性;
5.轻便:重量轻,相当于钢管1/5,铜管的1/6;
6.阻力小,流率高:管壁平洁光滑,输送流体时具有较小的摩擦阻力和附着力;
7.安装简易,成本低廉:可采用粘接、螺纹等方式连接,而简便的是胶水连接。

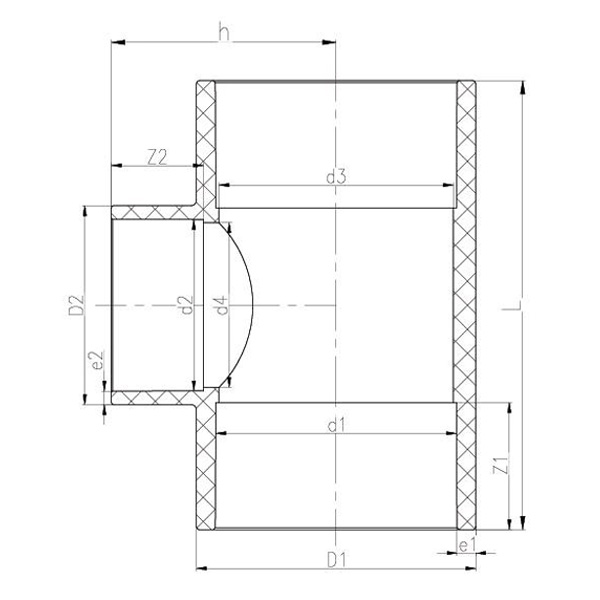
| 公称直径DN |
D1 |
D2 |
d1 |
d2 |
d3 |
d4 |
L |
h |
Z1 |
Z2 |
e1 |
e2 |
| 20*15 |
31.5 |
26 |
25 |
20 |
20 |
16 |
65.5 |
29.5 |
19 |
19 |
3.2 |
3 |
| 25*15 |
41 |
27 |
32 |
20 |
27 |
16 |
80.5 |
33.5 |
22 |
19 |
4.5 |
3.5 |
| 25*20 |
41 |
31.5 |
32 |
25 |
27 |
20 |
80.5 |
36.5 |
22 |
19 |
4.5 |
3.2 |
| 32*15 |
50.5 |
26 |
40 |
20 |
34 |
16 |
96.5 |
37.25 |
26 |
16.5 |
5.2 |
3 |
| 32*20 |
50.5 |
31.5 |
40 |
25 |
34 |
20 |
96.5 |
40.25 |
26 |
19 |
5.2 |
3.2 |
| 32*25 |
50.5 |
41 |
40 |
32 |
34 |
27 |
96.5 |
43.65 |
26 |
22 |
5.2 |
4.5 |
| 40*15 |
63.5 |
27 |
50 |
20 |
44 |
16 |
116 |
42.85 |
31 |
16 |
6.7 |
3.5 |
| 40*20 |
63.5 |
33 |
50 |
25 |
44 |
20 |
116 |
45.75 |
31 |
19 |
6.7 |
4 |
| 40*25 |
63.5 |
43 |
50 |
32 |
44 |
27 |
116 |
48.65 |
31 |
22 |
6.7 |
5.5 |
| 40*32 |
63.5 |
51 |
50 |
40 |
44 |
34 |
116 |
52.45 |
31 |
26 |
6.7 |
5.3 |
| 50*20 |
79 |
33 |
63 |
25 |
55 |
20 |
143 |
52 |
38 |
19 |
8 |
3.8 |
| 50*25 |
79 |
41 |
63 |
32 |
55 |
27 |
143 |
55.3 |
38 |
22 |
8 |
4.5 |
| 50*32 |
79 |
50.5 |
63 |
40 |
55 |
34 |
143 |
60 |
38 |
26 |
8 |
5.3 |
| 50*40 |
79 |
63.5 |
63 |
50 |
55 |
44 |
143 |
63.5 |
38 |
31 |
8 |
6.6 |
| 65*25 |
94.5 |
41 |
75 |
32 |
69 |
27 |
168 |
70.5 |
44 |
22 |
9.7 |
4.5 |
| 65*32 |
94.5 |
50.5 |
75 |
40 |
69 |
34 |
168 |
64 |
44 |
26 |
9.7 |
5.2 |
| 65*40 |
94.5 |
63 |
75 |
50 |
69 |
44 |
168 |
70 |
44 |
31 |
9.7 |
6.5 |
| 65*50 |
94.5 |
79.5 |
75 |
63 |
69 |
55 |
168 |
79 |
44 |
38 |
9.7 |
8.2 |
| 80*20 |
114 |
42.5 |
90 |
25 |
87 |
20 |
197 |
68.5 |
50.5 |
18.5 |
12 |
8.7 |
| 80*25 |
114 |
42.5 |
90 |
32 |
87 |
27 |
197 |
68.5 |
50.5 |
22 |
12 |
5.2 |
| 80*32 |
114 |
52 |
90 |
40 |
87 |
34 |
197 |
73.5 |
50.5 |
26 |
12 |
5.8 |
| 80*40 |
114 |
63.5 |
90 |
50 |
87 |
44 |
197 |
78.5 |
50.5 |
31 |
12 |
6.7 |
| 80*50 |
114 |
80 |
90 |
63 |
87 |
55 |
197 |
83 |
50.5 |
38 |
12 |
8.4 |
| 80*65 |
114 |
95 |
90 |
75 |
87 |
69 |
197 |
92 |
50.5 |
44 |
12 |
10 |
| 100*25 |
134 |
41 |
110 |
32 |
106 |
27 |
237 |
77 |
61 |
22.5 |
12 |
4.4 |
| 100*32 |
134 |
50 |
110 |
40 |
106 |
34 |
237 |
85 |
61 |
26 |
12 |
5 |
| 100*40 |
134 |
63 |
110 |
50 |
106 |
44 |
237 |
89 |
61 |
31 |
12 |
6.5 |
| 100*50 |
134 |
79 |
110 |
63 |
106 |
55 |
237 |
89 |
61 |
37.5 |
12 |
8 |
| 100*65 |
134 |
94.5 |
110 |
75 |
106 |
69 |
237 |
100 |
61 |
44 |
12 |
9.7 |
| 100*80 |
134 |
113.5 |
110 |
90 |
106 |
87 |
237 |
107 |
61 |
51 |
12 |
11.7 |
| 125*50 |
163 |
113 |
140 |
63 |
135 |
55 |
297.5 |
132.5 |
77 |
37.5 |
11.5 |
8 |
| 125*80 |
163 |
113 |
140 |
90 |
135 |
87 |
297.5 |
132.5 |
77 |
50.5 |
11.5 |
11.5 |
| 125*100 |
163 |
134 |
140 |
110 |
135 |
106 |
297.5 |
138.5 |
77 |
60.5 |
11.5 |
12 |
| 150*50 |
185.5 |
79.5 |
160 |
63 |
156 |
55 |
337 |
117.5 |
85.5 |
38 |
12.7 |
8.2 |