| 材料 |
介质温度℃ |
材料 |
介质温度℃ |
| 氯化聚氯乙烯(PVC-C) |
-20℃~+95℃ |
聚氯乙烯(PVC-U) |
-5℃~+45℃ |
| 增强聚丙烯(FRPP) |
-20℃~+120℃ |
均聚聚丙烯(PPH) |
-20℃~+110℃ |
| 聚偏二氟乙烯(PVDF) |
40℃~+150℃ |
|
|
1.抗化学性优越:使用温度范围广﹣20℃—95℃,介质中重离子含量达超纯水标准;卫生性能符合国家卫生标准要求;
2.具有优良的强度、韧性以及耐化学腐蚀性能;
3.耐用:优异的耐老化和抗紫外线性能,使正常使用寿命比其他管道系统均有很大的延长;
4.低热传导性能:约为钢材的1/200;阻燃性能为自熄性;
5.轻便:重量轻,相当于钢管1/5,铜管的1/6;
6.阻力小,流率高:管壁平洁光滑,输送流体时具有较小的摩擦阻力和附着力;
7.安装简易,成本低廉:可采用粘接、螺纹等方式连接,而简便的是胶水连接。

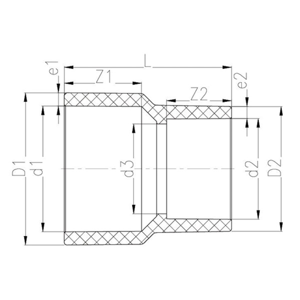
公称直径 DN |
D1 |
D2 |
d1 |
d2 |
d3 |
L |
Z1 |
Z2 |
e1 |
e2 |
| 300*200 |
351 |
251 |
315 |
225 |
219 |
325 |
163.5 |
118.5 |
18 |
13 |
| 300*250 |
351 |
310 |
315 |
280 |
274 |
336.5 |
163.5 |
146 |
18 |
15 |
| 350*150 |
390 |
184 |
355 |
160 |
154 |
343 |
184 |
86 |
17.5 |
12 |
| 350*200 |
390 |
249 |
355 |
225 |
214 |
359 |
184 |
119 |
17.5 |
12 |
| 350*250 |
390 |
308 |
355 |
280 |
270 |
370 |
184 |
146 |
17.5 |
14 |
| 350*300 |
390 |
346 |
355 |
315 |
304 |
378 |
184 |
164 |
17.5 |
15.5 |
| 400*200 |
440 |
249 |
400 |
225 |
214 |
394 |
206 |
119 |
20 |
12 |
| 400*250 |
440 |
308 |
400 |
280 |
270 |
405 |
206 |
146 |
20 |
14 |
| 400*300 |
440 |
346 |
400 |
315 |
304 |
413 |
206 |
164 |
20 |
15.5 |
| 400*350 |
440 |
390 |
400 |
355 |
340 |
423 |
206 |
184 |
20 |
17.5 |
| 450*300 |
494 |
346 |
450 |
315 |
304 |
454 |
231 |
164 |
22 |
15.5 |
| 450*350 |
494 |
390 |
450 |
355 |
340 |
463 |
231 |
184 |
22 |
17.5 |
| 450*400 |
494 |
440 |
450 |
400 |
386 |
472 |
231 |
206 |
22 |
20 |
| 500*300 |
548 |
346 |
500 |
315 |
304 |
494 |
256 |
164 |
24 |
15.5 |
| 500*350 |
548 |
390 |
500 |
355 |
340 |
504 |
256 |
184 |
24 |
17.5 |
| 500*400 |
548 |
440 |
500 |
400 |
386 |
513 |
256 |
206 |
24 |
20 |
| 500*450 |
548 |
494 |
500 |
450 |
430 |
525 |
256 |
231 |
24 |
22 |
| 600*300 |
692 |
346 |
630 |
315 |
304 |
600 |
321 |
164 |
31 |
15.5 |
| 600*350 |
692 |
390 |
630 |
355 |
340 |
609 |
321 |
184 |
31 |
17.5 |
| 600*400 |
692 |
440 |
630 |
400 |
386 |
618 |
321 |
206 |
31 |
20 |
| 600*450 |
692 |
494 |
630 |
450 |
430 |
630 |
321 |
231 |
31 |
22 |
| 600*500 |
692 |
548 |
630 |
500 |
480 |
641 |
321 |
256 |
31 |
24 |
| 公称直径DN |
D1 |
D2 |
d1 |
d2 |
d3 |
L |
Z1 |
Z2 |
e1 |
e2 |
| 20*15 |
32 |
27 |
25 |
20 |
16 |
42 |
19 |
16 |
3.5 |
3.5 |
| 25*15 |
40 |
27 |
32 |
20 |
16 |
48.5 |
22 |
16 |
4 |
3.5 |
| 25*20 |
40 |
32 |
32 |
25 |
21 |
49 |
22 |
19 |
4 |
3.5 |
| 32*20 |
50 |
32 |
40 |
25 |
21 |
57 |
26 |
19 |
5 |
3.5 |
| 32*25 |
50 |
40 |
40 |
32 |
28 |
57 |
26 |
22 |
5 |
4 |
| 40*25 |
61 |
40 |
50 |
32 |
28 |
67 |
31 |
22 |
5.5 |
4 |
| 40*32 |
61 |
50 |
50 |
40 |
36 |
67 |
31 |
26 |
5.5 |
5 |
| 50*25 |
75 |
40 |
63 |
32 |
28 |
80.5 |
38 |
22 |
6 |
4 |
| 50*32 |
75 |
50 |
63 |
40 |
36 |
80.5 |
38 |
26 |
6 |
5 |
| 50*40 |
75 |
61 |
63 |
50 |
45 |
81 |
38 |
31 |
6 |
5.5 |
| 65*25 |
88 |
40 |
75 |
32 |
28 |
93.5 |
44 |
22 |
6.5 |
4 |
| 65*32 |
88 |
50 |
75 |
40 |
36 |
93.5 |
44 |
26 |
6.5 |
5 |
| 65*40 |
88 |
61 |
75 |
50 |
45 |
94 |
44 |
31 |
6.5 |
5.5 |
| 65*50 |
88 |
75 |
75 |
63 |
58 |
95 |
44 |
38 |
6.5 |
6 |
| 80*25 |
105 |
40 |
90 |
32 |
28 |
108 |
51 |
22 |
7.5 |
4 |
| 80*32 |
105 |
50 |
90 |
40 |
36 |
108 |
51 |
26 |
7.5 |
5 |
| 80*40 |
105 |
61 |
90 |
50 |
45 |
108.5 |
51 |
31 |
7.5 |
5.5 |
| 80*50 |
105 |
75 |
90 |
63 |
58 |
109.5 |
51 |
38 |
7.5 |
6 |
| 80*65 |
105 |
88 |
90 |
75 |
69 |
110.5 |
51 |
44 |
7.5 |
6.5 |
| 100*40 |
127 |
61 |
110 |
50 |
45 |
130 |
61 |
31 |
8.5 |
5.5 |
| 100*50 |
127 |
75 |
110 |
63 |
58 |
130 |
61 |
38 |
8.5 |
6 |
| 100*65 |
127 |
88 |
110 |
75 |
69 |
130 |
61 |
44 |
8.5 |
6.5 |
| 100*80 |
127 |
105 |
110 |
90 |
84 |
130 |
61 |
51 |
8.5 |
7.5 |
| 125*50 |
161 |
75 |
140 |
63 |
58 |
143 |
76 |
38 |
10.5 |
6 |
| 125*65 |
161 |
88 |
140 |
75 |
69 |
146 |
76 |
44 |
10.5 |
6.5 |
| 125*80 |
16 |
1 105 |
140 |
90 |
82 |
149 |
76 |
51 |
10.5 |
7.5 |
| 125*100 |
161 |
127 |
140 |
110 |
102 |
154 |
76 |
61 |
10.5 |
8.5 |
| 150*65 |
184 |
88 |
60 |
75 |
69 |
162 |
86 |
44 |
12 |
6.5 |
| 150*80 |
184 |
105 |
160 |
90 |
82 |
165 |
86 |
51 |
12 |
7.5 |
| 150*100 |
184 |
127 |
160 |
110 |
102 |
170 |
86 |
61 |
12 |
8.5 |
| 150*125 |
184 |
161 |
160 |
140 |
130 |
176 |
86 |
76 |
12 |
10.5 |
| 200*80 |
260 |
105 |
225 |
90 |
82 |
217 |
119 |
51 |
17.5 |
7.5 |
| 200*100 |
260 |
127 |
225 |
110 |
102 |
221 |
119 |
61 |
17.5 |
8.5 |
| 200*125 |
260 |
161 |
225 |
140 |
130 |
228 |
119 |
76 |
17.5 |
10.5 |
| 200*150 |
260 |
184 |
225 |
160 |
150 |
233 |
119 |
86 |
17.5 |
12 |
| 250*200(Φ250*225) |
288 |
260 |
250 |
225 |
218 |
265 |
131 |
119 |
19 |
17.5 |
| 250*100(Φ280*110) |
310 |
127 |
280 |
110 |
105 |
272.5 |
146 |
61 |
15 |
8.5 |
| 250*125(Φ280*140) |
310 |
160 |
280 |
140 |
135 |
278 |
146 |
76 |
15 |
10 |
| 250*150(Φ280*160) |
310 |
180 |
280 |
160 |
155 |
283 |
146 |
86 |
15 |
12 |
| 250*200(Φ280*225) |
310 |
251 |
280 |
225 |
220 |
297 |
146 |
118.5 |
15 |
13 |
| 300*100 |
351 |
127 |
315 |
110 |
105 |
300.5 |
163.5 |
61 |
18 |
8.5 |
| 300*125 |
351 |
160 |
315 |
140 |
135 |
307 |
163.5 |
76 |
18 |
10 |
| 300*150 |
351 |
180 |
315 |
160 |
154 |
311.5163.5 |
86 |
18 |
10 |