| 材料 |
介质温度℃ |
材料 |
介质温度℃ |
| 氯化聚氯乙烯(PVC-C) |
-20℃~+95℃ |
聚氯乙烯(PVC-U) |
-5℃~+45℃ |
| 增强聚丙烯(FRPP) |
-20℃~+120℃ |
均聚聚丙烯(PPH) |
-20℃~+110℃ |
| 聚偏二氟乙烯(PVDF) |
40℃~+150℃ |
|
|
1.轻质高强
相对密度在1.5~2.0之间,只有碳钢的1/4~1/5,可拉伸强度却接近,甚至超过碳素钢,而比强度可以与高级合金钢相比;
2.耐腐蚀性能好
FRP是良好的耐腐材料,对大气、水和一般浓度的酸、碱、盐以及多种油类和溶剂都有较好的抵抗能力;
3.电性能好
FRP是优良的绝缘材料,用来制造绝缘体;高频下仍能保护良好介电性,微波透过性良好;
4.热性能良好
FRP热导率低,室温下为1.25~1.67kJ/,只有金属的1/100~1/1000,是优良的绝热材料;
5.可设计性好
可根据需要,灵活地设计出各种结构产品,来满足使用要求;使产品有很好的整体性,充分选择材料来满足产品的性能;
6.工艺性优良
可根据产品的形状、技术要求、用途及数量来灵活地选择成型工艺;工艺简单,可一次成型,经济效果突出,尤其对形状复杂、不易成型的数量少的产品,更突出它的工艺优越性。

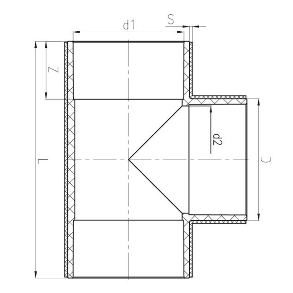
| 公称直径DN |
D |
d1 |
d2 |
L |
Z |
S |
| 0.6MPa |
1.0MPa |
1.6MPa |
| 15 |
27 |
20 |
18 |
56 |
16 |
2 |
2 |
2.5 |
| 20 |
32 |
25 |
22 |
66 |
19 |
2 |
2 |
2.5 |
| 25 |
40 |
32 |
29 |
80 |
22 |
2 |
2 |
2.5 |
| 32 |
50 |
40 |
37 |
99 |
26 |
2 |
2 |
2.5 |
| 40 |
61 |
50 |
47 |
120 |
31 |
2 |
2 |
2.5 |
| 50 |
75 |
63 |
59 |
148 |
38 |
2 |
2 |
3 |
| 65 |
88 |
75 |
71 |
169 |
44 |
2 |
2 |
3 |
| 80 |
104 |
90 |
86 |
198 |
51 |
2 |
2.5 |
3.5 |
| 100 |
127 |
110 |
105 |
238 |
61 |
2 |
3 |
4 |
| 125 |
161 |
140 |
135 |
298 |
76 |
2.5 |
4 |
5.5 |
| 150 |
184 |
160 |
154 |
338 |
86 |
2.5 |
4 |
5.5 |
| 200 |
249 |
225 |
219 |
484 |
119 |
3.5 |
5 |
7 |
| 250(Φ250) |
287 |
250 |
240 |
538 |
131 |
4 |
5.5 |
8.5 |
| 250(Φ280) |
310 |
280 |
270 |
595 |
146 |
4 |
5.5 |
8.5 |
| 300 |
346 |
315 |
310 |
662 |
164 |
4.5 |
6.5 |
10 |
| 350 |
392 |
355 |
340 |
749 |
184 |
5 |
7.5 |
11.5 |
| 400 |
433 |
400 |
386 |
840 |
206 |
5.5 |
8.5 |
13 |
| 450 |
494 |
450 |
430 |
944 |
231 |
6 |
9.5 |
14.5 |
| 500 |
540 |
500 |
480 |
1040 |
256 |
6.5 |
10.5 |
16 |
| 600 |
690 |
630 |
610 |
1286 |
321 |
8 |
11.5 |
19 |
注:复合管件尺寸S可由供需双方协商适量微调。