| 材料 |
介质温度℃ |
材料 |
介质温度℃ |
| 氯化聚氯乙烯(PVC-C) |
-20℃~+95℃ |
聚氯乙烯(PVC-U) |
-5℃~+45℃ |
| 增强聚丙烯(FRPP) |
-20℃~+120℃ |
均聚聚丙烯(PPH) |
-20℃~+110℃ |
| 聚偏二氟乙烯(PVDF) |
40℃~+150℃ |
|
|
1.轻便:PVC-U 材料的比重只有铸铁的 1/10,运输,安装简易,降低成本;
2.抗化学性优越:PVC-U 具有优良的抗酸碱性能,除接近饱和点强酸碱外;
3.耐用:抗候性优良,也不能被细菌及菌类所腐化;
4.不导电:PVC-U 材料不能导电,也不受电解,电流的腐蚀,应此无需二次加工。不能燃烧,也不助燃,没有消防顾虑;
5.阻力小,流率高:内壁光滑,流体流动性损耗小,加以污垢不易附着在平滑管壁,保养较为简易,保养费用较低;
6.安装简易,成本低廉:切割及联接都很简易,使用 PVC 胶水联接实践证明安全可靠,操作简便,成本低廉。

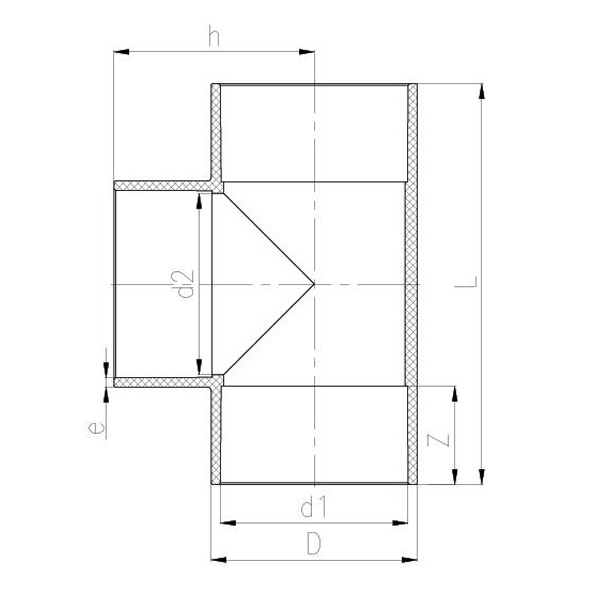
公称直径 DN |
D |
d1 |
d2 |
L |
Z |
h |
e |
| 15 |
27 |
20 |
18 |
56 |
16 |
28 |
3.5 |
| 20 |
32 |
25 |
22 |
66 |
18.5 |
33 |
3.5 |
| 25 |
40 |
32 |
29 |
80 |
22 |
40 |
4 |
| 32 |
50 |
40 |
37 |
99 |
26 |
49.5 |
5 |
| 40 |
61 |
50 |
47 |
120 |
31 |
60 |
5.5 |
| 50 |
75 |
63 |
59 |
148 |
38 |
74 |
6 |
| 65 |
88 |
75 |
71 |
169 |
43.5 |
84.5 |
6.5 |
| 80 |
104 |
90 |
86 |
198 |
51 |
99 |
7 |
| 100 |
127 |
110 |
105 |
238 |
61 |
119 |
8.5 |
| 125 |
161 |
140 |
135 |
298 |
76 |
149 |
10.5 |
| 150 |
184 |
160 |
154 |
338 |
86 |
169 |
12 |
| 200 |
249 |
225 |
219 |
484 |
118.5 |
242 |
12 |
| 250 |
308 |
280 |
270 |
595 |
146 |
297.5 |
14 |
| 300 |
346 |
315 |
310 |
662 |
163.51 |
331 |
15.5 |
| 350 |
390 |
355 |
340 |
749 |
184 |
374.5 |
17.5 |
| 400 |
440 |
400 |
386 |
840 |
206 |
420 |
20 |
| 450 |
494 |
450 |
430 |
944 |
231 |
472 |
22 |
| 500 |
540 |
500 |
480 |
1040 |
256 |
520 |
20 |
| 600 |
692 |
630 |
591 |
1772 |
321 |
886 |
30 |
| 700 |
758 |
710 |
675 |
1902 |
361 |
951 |
22.5 |