| 材料 |
介质温度℃ |
材料 |
介质温度℃ |
| 氯化聚氯乙烯(PVC-C) |
-20℃~+95℃ |
聚氯乙烯(PVC-U) |
-5℃~+45℃ |
| 增强聚丙烯(FRPP) |
-20℃~+120℃ |
均聚聚丙烯(PPH) |
-20℃~+110℃ |
| 聚偏二氟乙烯(PVDF) |
40℃~+150℃ |
|
|
1.轻便:PVC-U 材料的比重只有铸铁的 1/10,运输,安装简易,降低成本;
2.抗化学性优越:PVC-U 具有优良的抗酸碱性能,除接近饱和点强酸碱外;
3.耐用:抗候性优良,也不能被细菌及菌类所腐化;
4.不导电:PVC-U 材料不能导电,也不受电解,电流的腐蚀,应此无需二次加工。不能燃烧,也不助燃,没有消防顾虑;
5.阻力小,流率高:内壁光滑,流体流动性损耗小,加以污垢不易附着在平滑管壁,保养较为简易,保养费用较低;
6.安装简易,成本低廉:切割及联接都很简易,使用 PVC 胶水联接实践证明安全可靠,操作简便,成本低廉。

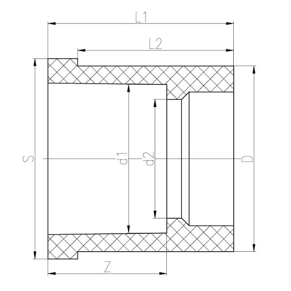
公称直径 DN |
D |
d1 |
d2 |
L1 |
L2 |
Z |
S |
| 150*100 |
160 |
110 |
106 |
100 |
86 |
61 |
164.5 |
| 150*125 |
160 |
140 |
136 |
100 |
86 |
76 |
164.5 |
| 200*150 |
225 |
160 |
155 |
135 |
119 |
86 |
228.5 |
| 250*50 |
280 |
63 |
60 |
146 |
128 |
37.5 |
285 |
| 250*200 |
280 |
225 |
210 |
146 |
128 |
119 |
285 |
| 300*250 |
315 |
280 |
265 |
178 |
158 |
131 |
324 |
| 350*250 |
355 |
280 |
270 |
199 |
184 |
146 |
355 |
| 350*300 |
355 |
315 |
304 |
199 |
184 |
164 |
355 |
| 400*150 |
400 |
160 |
154 |
221 |
206 |
86 |
400 |
| 400*250 |
400 |
280 |
270 |
221 |
206 |
146 |
400 |
| 400*350 |
400 |
355 |
340 |
221 |
206 |
184 |
400 |
公称直径 DN |
D |
d1 |
d2 |
L1 |
L2 |
Z |
S |
| 20*15 |
25 |
20 |
16.5 |
25 |
21 |
16 |
27.5 |
| 25*15 |
32 |
20 |
16.5 |
27 |
22 |
16 |
35 |
| 25*20 |
32 |
25 |
21 |
27 |
22 |
19 |
35 |
| 32*15 |
40 |
20 |
16.5 |
32 |
26 |
16 |
42.5 |
| 32*20 |
40 |
25 |
21 |
32 |
26 |
18 |
42.5 |
| 32*25 |
40 |
32 |
27.5 |
32.5 |
26.5 |
21.5 |
42.5 |
| 40*15 |
50 |
20 |
16.5 |
39 |
31 |
16 |
54 |
| 40*20 |
50 |
25 |
21 |
39 |
31 |
19 |
54 |
| 40*25 |
50 |
32 |
28 |
39 |
31 |
22 |
54 |
| 40*32 |
50 |
40 |
36 |
39 |
31 |
26 |
54 |
| 50*15 |
63 |
20 |
16.5 |
47 |
38 |
16 |
67 |
| 50*20 |
63 |
25 |
21 |
47 |
38 |
19 |
67 |
| 50*25 |
63 |
32 |
28 |
47 |
38 |
22 |
67 |
| 50*32 |
63 |
40 |
36 |
47 |
38 |
26 |
67 |
| 50*40 |
63 |
50 |
46 |
47 |
38 |
31 |
67 |
| 65*25 |
75 |
32 |
28 |
53 |
44 |
22 |
79 |
| 65*32 |
75 |
40 |
36 |
53 |
44 |
26 |
79 |
| 65*40 |
75 |
50 |
46 |
53 |
44 |
31 |
79 |
| 65*50 |
75 |
63 |
58.5 |
53 |
44 |
38 |
79 |
| 80*32 |
90 |
40 |
35.5 |
61 |
51 |
26 |
93.5 |
| 80*40 |
90 |
50 |
46 |
61 |
51 |
31 |
93.5 |
| 80*50 |
90 |
63 |
59 |
61 |
51 |
38 |
93.5 |
| 80*65 |
90 |
75 |
70 |
61 |
51 |
43.5 |
93.5 |
| 100*32 |
110 |
40 |
35.5 |
72.5 |
60.5 |
31 |
113.5 |
| 100*40 |
110 |
50 |
46 |
73 |
61 |
31 |
113.5 |
| 100*50 |
110 |
63 |
59 |
73 |
61 |
38 |
113.5 |
| 100*65 |
110 |
75 |
71 |
73 |
61 |
44 |
113.5 |
| 100*80 |
110 |
90 |
84 |
73 |
61 |
49 |
113.5 |
| 125*50 |
140 |
63 |
60 |
88 |
76 |
38 |
144 |
| 125*80 |
140 |
90 |
85 |
88 |
76 |
56 |
144 |
| 125*100 |
140 |
110 |
105 |
88 |
76 |
61 |
144 |
| 150*50 |
160 |
63 |
60 |
100 |
86 |
38 |
165 |