| 材料 |
介质温度℃ |
材料 |
介质温度℃ |
| 氯化聚氯乙烯(PVC-C) |
-20℃~+95℃ |
聚氯乙烯(PVC-U) |
-5℃~+45℃ |
| 增强聚丙烯(FRPP) |
-20℃~+120℃ |
均聚聚丙烯(PPH) |
-20℃~+110℃ |
| 聚偏二氟乙烯(PVDF) |
40℃~+150℃ |
|
|
1.材料的结晶度高
由单一聚丙烯单体聚合而成,分子链中不含乙烯单体;分子链的整规度高,长久的使用寿命;
2.耐腐蚀性能好
可在一定范围内承受PH值范围在1-14的高浓度酸和碱的腐蚀;
3.耐热保温节能
适用的温度范围从-20℃到110℃;导热系数小,具有较好的保温性能;
4.可靠的连接性能
该产品热熔接口的强度高于管材本体,接缝不会由于土壤移动或载荷作用而断开;
5.良好的施工性能
该产品质轻,焊接工艺简单,施工方便,工程综合造价低,能满足复杂的工艺管道;PPH管道系统广泛应用于电镀、蚀刻、化工、制药、污水处理、环境工程等行业。

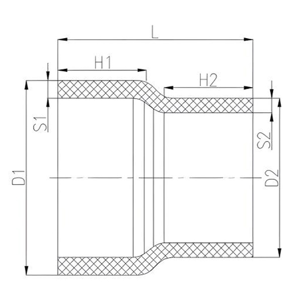
| 公称直径DN |
D1 |
S1 |
D2 |
S2 |
L |
H1 |
H2 |
| 50X32 |
63 |
5.8 |
40 |
3.7 |
95 |
45 |
45 |
| 50X40 |
63 |
5.8 |
50 |
4.6 |
95 |
45 |
47 |
| 65X50 |
75 |
6.9 |
63 |
5.8 |
45 |
73 |
180 |
| 80X65 |
90 |
8.2 |
75 |
6.9 |
50 |
82 |
210 |
| 100X80 |
110 |
10 |
90 |
8.2 |
55 |
80 |
235 |
| 150X100 |
160 |
14.6 |
110 |
10 |
75 |
88 |
280 |
| 200X150 |
225 |
20.5 |
160 |
14.6 |
80 |
110 |
310 |