| 材料 |
介质温度℃ |
材料 |
介质温度℃ |
| 氯化聚氯乙烯(PVC-C) |
-20℃~+95℃ |
聚氯乙烯(PVC-U) |
-5℃~+45℃ |
| 增强聚丙烯(FRPP) |
-20℃~+120℃ |
均聚聚丙烯(PPH) |
-20℃~+110℃ |
| 聚偏二氟乙烯(PVDF) |
40℃~+150℃ |
|
|
1.耐热性能优
增强聚丙烯是在原纯PP的基础上,加入了玻璃纤维,从而提高材质的使用范围;耐温性能增强,克服聚丙烯机械强度低的缺陷,保持聚丙烯优良耐腐蚀性能,提高工作温度;
2.机械强度高 耐磨性能好
强度、刚度、硬度和耐热性均优于低压聚乙烯;
线膨胀系数小具有强度的耐酸、耐碱、耐温等特性;
3.冲韧性优异
成型收缩率:1.0-2.5%,收缩率下降,刚性大大提高;具有良好的电性能和高频绝缘性不受湿度影响;
4.应用范围广泛
FRPP由于材质成本低、使用寿命长、安装方便,
管道系统广泛应用于化工、化纤、氯碱、染料、给排水、食品、医药、污水处理、电解等行业。

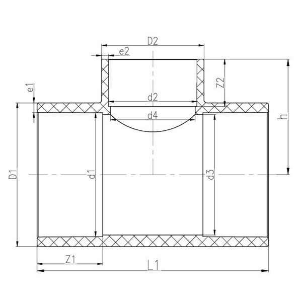
| 公称直径DN |
D1 |
D2 |
d1 |
d2 |
d3 |
d4 |
L |
h |
Z1 |
Z2 |
e1 |
e2 |
| 20*15 |
31.5 |
26 |
25 |
20 |
20 |
16 |
65 |
29.5 |
19 |
16 |
3.2 |
3 |
| 25*15 |
41 |
27 |
32 |
20 |
27 |
16 |
79.5 |
33.5 |
22 |
16 |
4.5 |
3.5 |
| 25*20 |
41 |
31.5 |
32 |
25 |
27 |
20 |
79.5 |
36.5 |
22 |
19 |
4.5 |
3.2 |
| 32*15 |
50 |
25.5 |
40 |
20 |
34 |
16 |
96 |
37.25 |
26 |
16 |
5 |
2.7 |
| 32*20 |
50 |
31.5 |
40 |
25 |
34 |
20 |
96 |
40.25 |
26 |
19 |
5 |
3.2 |
| 32*25 |
50 |
41 |
40 |
32 |
34 |
27 |
96 |
43.65 |
26 |
22 |
5 |
4.5 |
| 40*15 |
63 |
27 |
50 |
20 |
44 |
16 |
115.5 |
42.85 |
31 |
16 |
6.5 |
3.5 |
| 40*20 |
63 |
33 |
50 |
25 |
44 |
20 |
115.5 |
45.75 |
31 |
19 |
6.5 |
4 |
| 40*25 |
63 |
43 |
50 |
32 |
44 |
27 |
115.5 |
48.65 |
31 |
22 |
6.5 |
5.5 |
| 40*32 |
63 |
50.5 |
50 |
40 |
44 |
34 |
115.5 |
52.45 |
31 |
26 |
6.5 |
5.2 |
| 50*15 |
79 |
32.5 |
63 |
20 |
55 |
16 |
142 |
52 |
38 |
16 |
8 |
6.2 |
| 50*20 |
79 |
32.5 |
63 |
25 |
55 |
20 |
142 |
52 |
38 |
19 |
8 |
3.7 |
| 50*25 |
79 |
40.5 |
63 |
32 |
55 |
27 |
142 |
55.3 |
38 |
22 |
8 |
4.2 |
| 50*32 |
79 |
50 |
63 |
40 |
55 |
34 |
142 |
60 |
38 |
26 |
8 |
5 |
| 50*40 |
79 |
62.5 |
63 |
50 |
55 |
44 |
142 |
63.5 |
38 |
31 |
8 |
6.2 |
| 65*25 |
93.5 |
40.5 |
75 |
32 |
74 |
27 |
165 |
70.5 |
44 |
22 |
9.2 |
4.2 |
| 65*32 |
93.5 |
50 |
75 |
40 |
74 |
34 |
165 |
64 |
44 |
26 |
9.2 |
5 |
| 65*40 |
93.5 |
62.5 |
75 |
50 |
74 |
44 |
165 |
70 |
44 |
31 |
9.2 |
6.2 |
| 65*50 |
93.5 |
79 |
75 |
63 |
74 |
55 |
165 |
79 |
44 |
38 |
9.2 |
8 |
| 80*20 |
112 |
42 |
90 |
25 |
87 |
20 |
194.5 |
68.5 |
50.5 |
18.5 |
11 |
8.5 |
| 80*25 |
112 |
42 |
90 |
32 |
87 |
27 |
194.5 |
68.5 |
50.5 |
22 |
11 |
5 |
| 80*32 |
112 |
51.5 |
90 |
40 |
87 |
34 |
194.5 |
73.5 |
50.5 |
26 |
11 |
5.7 |
| 80*40 |
112 |
63 |
90 |
50 |
87 |
44 |
194.5 |
78.5 |
50.5 |
31 |
11 |
6.5 |
| 80*50 |
112 |
79 |
90 |
63 |
87 |
55 |
194.5 |
83 |
50.5 |
38 |
11 |
8 |
| 80*65 |
112 |
94 |
90 |
75 |
87 |
74 |
194.5 |
92 |
50.5 |
44 |
11 |
9.5 |
| 100*25 |
132.5 |
40.5 |
110 |
32 |
106 |
27 |
234.5 |
77 |
61 |
22.5 |
11.2 |
4.2 |
| 100*32 |
132.5 |
50 |
110 |
40 |
106 |
34 |
234.5 |
85 |
61 |
26 |
11.2 |
5 |
| 100*40 |
132.5 |
63 |
110 |
50 |
106 |
44 |
234.5 |
89 |
61 |
31 |
11.2 |
6.5 |
| 100*50 |
132.5 |
78.5 |
110 |
63 |
106 |
55 |
234.5 |
89 |
61 |
37.5 |
11.2 |
7.7 |
| 100*65 |
132.5 |
94 |
110 |
75 |
106 |
74 |
234.5 |
100 |
61 |
44 |
11.2 |
9.5 |
| 100*80 |
132.5 |
113 |
110 |
90 |
106 |
87 |
234.5 |
107 |
61 |
51 |
11.2 |
11.5 |
| 125*50 |
161 |
112.5 |
140 |
63 |
135 |
55 |
295 |
132.5 |
77 |
37.5 |
10.5 |
7.7 |
| 125*80 |
161 |
112.5 |
140 |
90 |
135 |
87 |
295 |
132.5 |
77 |
50.5 |
10.5 |
11.2 |
| 125*100 |
161 |
133 |
140 |
110 |
135 |
106 |
295 |
138.5 |
77 |
60.5 |
10.5 |
11.5 |
| 150*50 |
182 |
78.5 |
160 |
63 |
156 |
55 |
333 |
117.5 |
85.5 |
38 |
11 |
7.7 |
| 150*65 |
182 |
94 |
160 |
75 |
156 |
74 |
333 |
128.5 |
85.5 |
44 |
11 |
9.5 |
| 150*80 |
182 |
112 |
160 |
90 |
156 |
87 |
333 |
132.5 |
85.5 |
51 |
11 |
11 |
| 150*100 |
182 |
133.5 |
160 |
110 |
156 |
106 |
333 |
142.5 |
85.5 |
60.5 |
11 |
11.7 |
| 150*125 |
182 |
160.5 |
160 |
140 |
156 |
135 |
333 |
159.5 |
85.5 |
77 |
11 |
10.2 |