| 材料 |
介质温度℃ |
材料 |
介质温度℃ |
| 氯化聚氯乙烯(PVC-C) |
-20℃~+95℃ |
聚氯乙烯(PVC-U) |
-5℃~+45℃ |
| 增强聚丙烯(FRPP) |
-20℃~+120℃ |
均聚聚丙烯(PPH) |
-20℃~+110℃ |
| 聚偏二氟乙烯(PVDF) |
40℃~+150℃ |
|
|
1.耐热性佳并有高介电强度
PVDF分子结构规整性较大,分子中氟原子和氯原子大小相似,高分子链的排列紧密,并存在着较强的氢键效应,因此聚合物的拉伸强度,压缩强度及冲击韧性等都比较大。此外PVDF的熔点在170℃左右,加工性能良好,方便成型;
2.耐磨,高机械强度及韧度
在氟塑料中具有韧性,低摩擦系数、耐老化性有很强的耐磨性和抗冲击性能,而且在严酷与恶劣的环境中有很高的抗褪色性与抗紫外线性能;
3.耐候,抗紫外线及核射线
高纯净度,有良好的化学稳定性,耐腐蚀性、耐高温性、高阻隔性、耐氧化性、耐候性、耐射线辐射性能外,还具有压电性、介电性、热电性等特殊性能;
4.应用范围广泛
PVDF管道系统广泛应用于石油化工、电子电气、氟碳涂料、核工电力项目、半导体工业上和石化工业上的高纯化学品的贮存和输送。

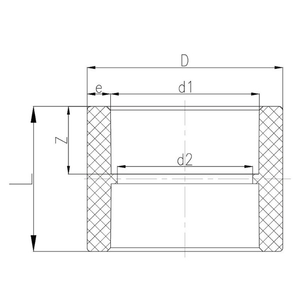
| 公称直径DN |
D |
d1 |
d2 |
L |
Z |
e |
| 15 |
26 |
20 |
16 |
33.5 |
15 |
3 |
| 20 |
31 |
25 |
20 |
39.5 |
18 |
3 |
| 25 |
38.5 |
32 |
26 |
44 |
20.5 |
3.2 |
| 32 |
50 |
40 |
34 |
47.5 |
22 |
5 |
| 40 |
63.5 |
50 |
44 |
53.5 |
24.5 |
6.7 |
| 50 |
80 |
63 |
56 |
59 |
27.5 |
8.5 |
| 65 |
91.5 |
75 |
67 |
69 |
30.5 |
8.2 |
| 80 |
110 |
90 |
80 |
80 |
34.5 |
10 |
| 100 |
131.5 |
110 |
100 |
95 |
40.5 |
10.7 |